Lakeview Cottage - Collections
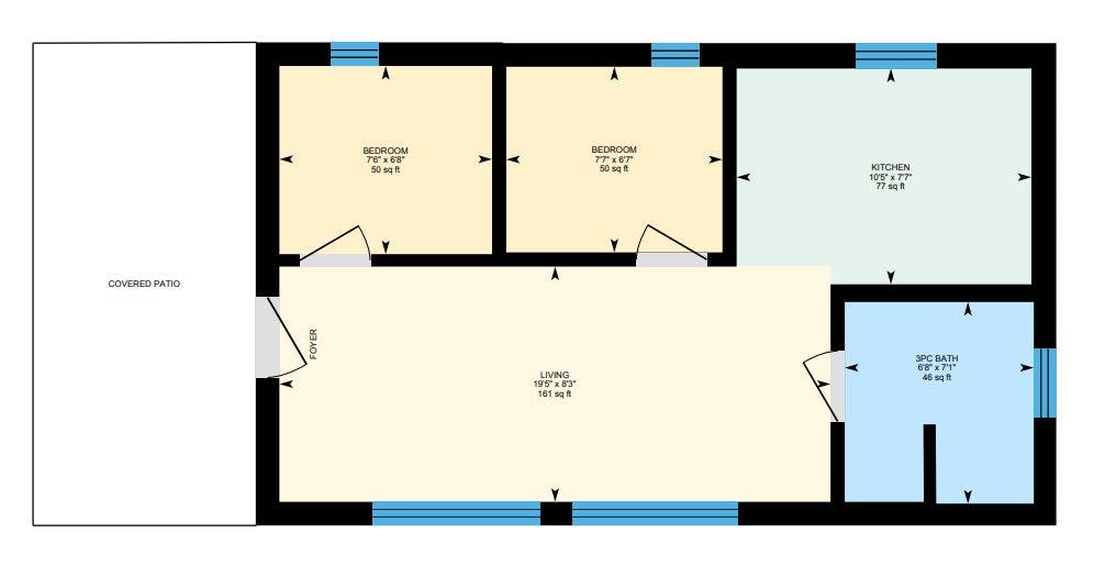
Cottage # 10
- Lake View
- 416 Sq.Ft
- Bedroom # 1 - Double
- Bedroom # 2 - Bunk -S/double
Cottages are a bring-your-own linens establishment. Click Here for details.
Amenities
Cable/Satellite TV
Microwave
Safe Drinking Water
Shower
Fridge/Freezer
BBQ
Coffee Maker
Stove/Oven
Screened in Porch
Dishes/Cups/Cutlery






